IONIA, Mich. — Thanks to a federal grant announced on Thursday, Sparrow Ionia Health is expanding its facilities— and its ability to provide healthcare for rural communities.
Sparrow Ionia Hospital will receive a grant of $1 million. The money will be used to strengthen rehab programs, but it will also be put towards improving services in rural healthcare.
On Thursday, the USDA Undersecretary for Rural Development, Xochitl Torres Small, visited the hospital to announce the grant, saying she appreciated the way Sparrow Hospital focuses on the "main needs of the community."
"When you have healthcare close to home, it matters," she said.
Linda Reetz, the President of Sparrow Ionia Hospital, revealed that the hospital had purchased and made plans for an empty building- a former Sears business.

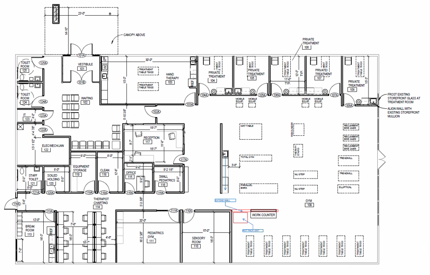
She said the building will be transformed into a 7,500-square-foot space for a comprehensive center for physical therapy. She says they also plan to include space for rehabilitation services, occupational therapy, speech therapy, neurorehabilitation, sports rehabilitation, and pediatrics.
Reetz added that a comprehensive pain center is also in the works, in order to provide more resources for those looking for help with opioids.
"It is our goal to provide quality, compassionate care," Reetz said. "Every patient, every time."
